3房2厅北欧风格-遇见原木

16937人21 人2017-07-25 发布
现代简约・三房・145㎡・全包22万・设计费0.9万
00_概述
  • 业主情况
    本案业主是80后,外企工作,追求自在随意的生活方式。
  • 装修要求
    需要独立的影音室,两间卧室,注重厨房的功能性。会在家里举行一些聚会,客餐厅最大限度容15人左右。
  • 设计理念
    设计师推翻所有原有结构功能分区进行重组,共通的客餐厅和书房内退的阳台开放式厨房等等,功能区全部朝南
  • 01_客厅
    北欧风格

    客厅

  • 02_餐厅
    北欧风格

    餐厅

  • 03_卧室
    北欧风格

    卧室

  • 04_书房
    北欧风格

    客餐厅+半开放式书房

  • 05_厨房
    北欧风格

    厨房

  • 06_卫生间
    北欧风格

    卫生间

  • 07_其它
    北欧风格

    玄关

    影音室

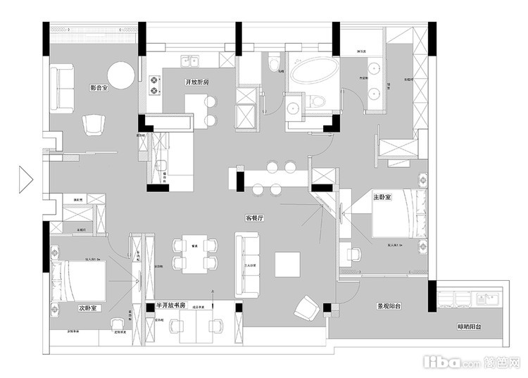
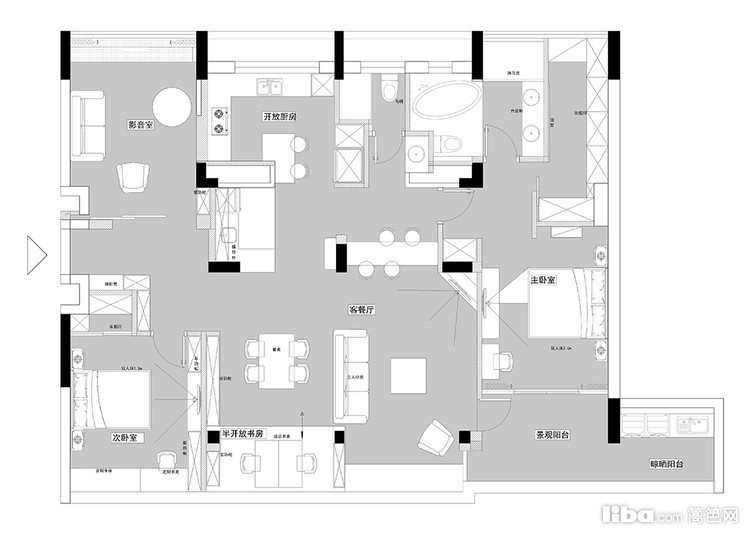
    平面设计图

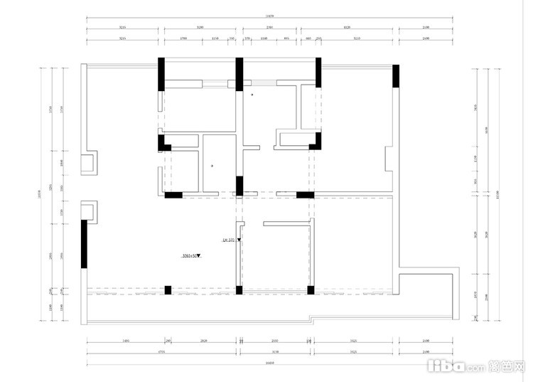
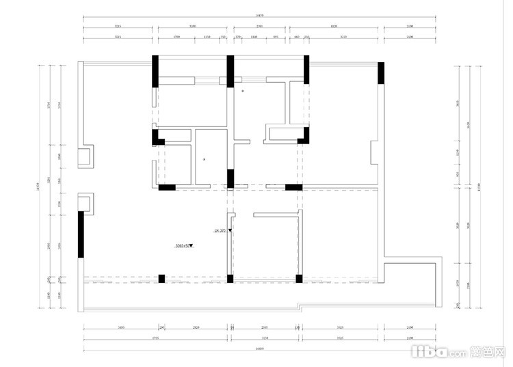
    原始房型图

免费预约
已有19591人下单。预约短信将发您手机上!
复制成功
请使用浏览器自带的“分享”功能
可以把作品分享到微信及朋友圈
取消
预约提醒
亲爱的会员您**********的号码
今天已预约过20个商家已达到上限
请明天再来!