时尚沪上阿姨@养老房

1951人0 人2018-09-14 发布
欧式・三房・140㎡・全包32万・设计费1.5万
00_概述
  • 业主情况
    本案业主是一对50多岁的叔叔阿姨,管理着100号人的公司,学英文,看哈利波特,喝咖啡,思想不输年轻人
  • 装修要求
    去欧洲旅游后对其念念不忘,定位欧式风,但是却不喜繁杂,所以摒弃了较多复杂的欧式装饰。
  • 设计师
    Summer谢晨
  • 设计理念
    增加厨房和主卧储物面积,次卧加飘窗和榻榻米,冰箱从厨房隔离出来,敲掉了原来厨房进门区墙体
  • 01_客厅
    整个客厅颜色以浅色为主,欧式的沙发和置物架摆设,让整个客厅有了欧式的感觉,配上带有色彩的靠枕,欧式奢华尽显。

    电视背景墙和沙发背景墙呼应,做了线条,中间贴的瓷砖,两边贴的壁纸。线条感把欧式氛围烘托出来。

    为了做隐形门,所以做了护墙板,右侧护墙板可以推开直接可以进入榻榻米房。

  • 02_卧室
    整个主卧,是一个非常方正的四方形,但是原来衣柜的地方占据了一角,让本来很大的主卧显得不够大气。经过调整格局,现在房间非常开阔和明亮。

    把原来衣柜占用的面积还给主卧,进主卫的区域改为从衣帽间进入,让动线和视觉效果能达到最佳。

    主卧有一个飘窗,为了满足主卧需要看书的要求,沿着飘窗右侧做了一个书柜

    为了次卧增加储物空间和书桌的功能,靠窗做了一个飘窗和书桌。

    客房榻榻米,平时就是储物间,超级强大的储物空间解决了家人的储物上的问题。

  • 03_厨房
    厨房把原来进门的墙体拿掉过后,把冰箱从厨房拿出来,让冰箱免受油烟之苦,也增加了餐厅的面积,让餐厅空间不再局促。

    厨房原来设计的L型,后期为了增加厨房的储物,特意做了U型,这样就给了微波炉这些电器柜有了一个归宿。

    过道采用拼花,设计,让欧式风格得到更好的诠释。

  • 04_卫生间
    卫生间原来是干湿分区,虽然功能划分强,但是也造成了干区严重的采光不足问题,对于二口人而言长期居住不适用,设计台盆回归卫生间。为了防止台面储物凌乱的问题,特意在右侧墙体掏了一个储物柜
  • 05_阳台露台
    阳台地面采用暖色复古砖,和客厅的整体风格统一。
  • 06_其它
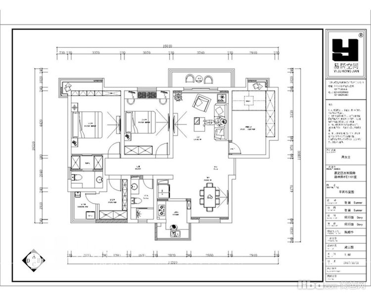
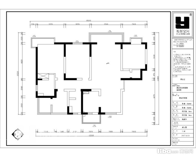
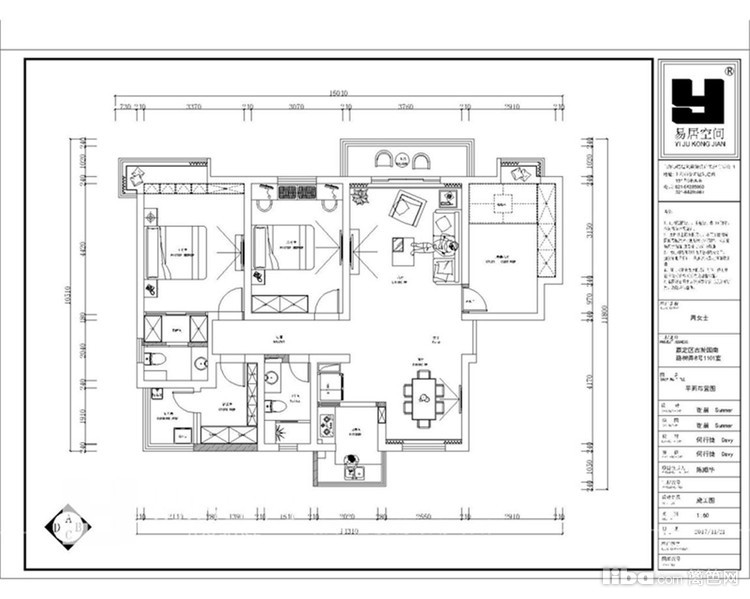
    平面图纸

    原始户型图

    平面方案图

免费预约
已有257人下单。预约短信将发您手机上!
复制成功
请使用浏览器自带的“分享”功能
可以把作品分享到微信及朋友圈
取消
预约提醒
亲爱的会员您**********的号码
今天已预约过20个商家已达到上限
请明天再来!