【蓝调】收纳爆表の三口之家

4931人4 人2018-10-18 发布
现代简约・两房・50㎡・全包8万・设计费0.3万
00_概述
  • 业主情况
    本案一家三口居住,女业主从事的工作是做一休一的,所以在家的时间较多,喜欢北欧简约风。
  • 装修要求
    收纳储藏空间一定要多,需要一个客厅,实用性强,色调温馨。
  • 设计师
    徐溯
  • 设计理念
    入户处打通做斜角收纳,现场打造较多木工柜体以满足收纳储藏。卧室做隔断独立出客厅打通阳台纳入卧室空间内
  • 01_客厅
    客厅空间由原始卧室隔断,用移门再做区域的分割。全屋浅蓝色乳胶漆,灰色的双人沙发,白色的柜体。让空间更具有温度,但又避免强烈的色彩对冲。

    沙发左侧,放了定制的储物柜,中空处摆放精致的小物品。

    业主说本身想在家中养只猫,但是考虑到猫窝没有地方安置,就养点小鱼儿吧。也算给生活增添点情趣。

    一缕温馨的灯光,下班后。两人窝在沙发里,看着电视,伴随着温暖的灯光,温馨,舒适。

    入户处,摆放冰箱和洗衣机,上方打造木工柜,不放过每一寸收纳空间。既满足了收纳功能,又使得空间和谐统一

    特地做了和电视柜衣柜一整体的斜插式鞋柜,既满足了收纳功能,也使得柜体统一和谐,美观实用。

    每一处细节,都体现了主人的精致。

  • 02_卧室
    主卧室的墙面是浅蓝色,搭配淡灰色靠背的双人床。现场工人打造满墙衣柜, 衣柜的一侧做成了格子,可以放一些小摆件,也可以作为一个小型书架,放一些平时看的书籍。原阳台打通,做书桌用。

    小空间添了一抹绿意,增了生机和活力。

    朝南的主卧,清晨醒来时,拉开布艺的窗帘,阳光洒在身上,温暖而舒适,可以让心情好上一整天。

    儿童房工人现场打造多功能柜,书桌+衣柜+床头柜。床头是简约风的挂画。

    温馨的暖色小壁灯,小清新感十足。

  • 03_厨房
    厨房空间较小,所以将厨房作为开放形式。白色搭配白色的面包砖显得空间明亮开阔。设计墙体收放式小餐桌,一点不占用空间。

    北欧,简约,每一处都那么精致。

  • 04_卫生间
    虽然在空间规划的时候已经尽量放大卫生间区域,但卫生间区域还是很小,将台盆放置淋浴区内,和马桶放置一排,和谐统一。使用推拉门,不占用一点空间。
  • 05_其它
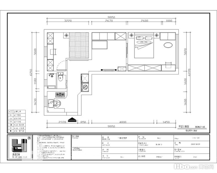
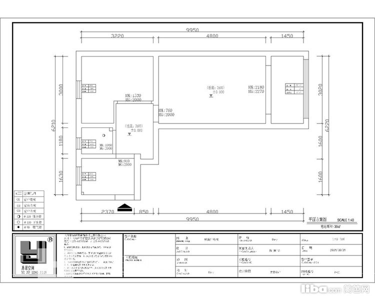
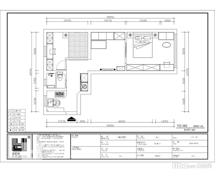
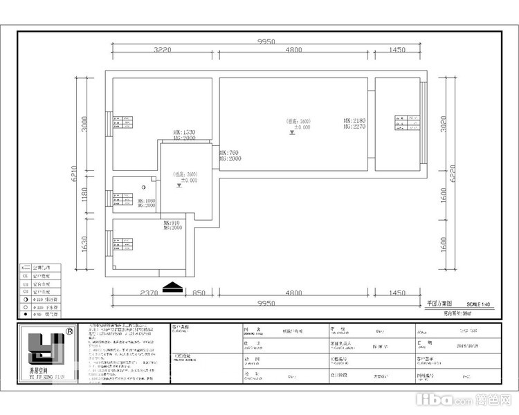
    原始结构图&装修设计图
免费预约
已有257人下单。预约短信将发您手机上!
复制成功
请使用浏览器自带的“分享”功能
可以把作品分享到微信及朋友圈
取消
预约提醒
亲爱的会员您**********的号码
今天已预约过20个商家已达到上限
请明天再来!