Babyの小窝

1393人0 人2018-11-22 发布
现代简约・两房・82㎡・全包10万・设计费0.4万
00_概述
  • 业主情况
    女儿和妈妈居住加一只3岁的金毛犬Baby
  • 装修要求
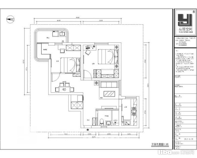
    老房翻新,客厅面积小,无餐厅和主卧,阳台面积大。希望有独立空间,简约干净。
  • 设计师
    徐永斌
  • 设计理念
    温暖是家的感觉,本案在北欧风格的基础上将整体色调变暖。
  • 01_客厅
    本案在北欧风格的基础上将整体色调变暖。客厅原视距2.7米,卫生间墙体内移,让出空间后视距是2.9米。全屋暖色系,白色家具,搭配米色沙发。简洁的现代空间,搭配彩色软装点亮空间。

    沙发背景墙干干净净,只选用三幅画做装饰。

    原储藏间改为储物柜和冰箱位置。

    美丽的业主小姐姐+可爱的Baby和设计师徐永斌的合照

    原地面大理石砖改为玻化砖。现场打造木工鞋柜,顶上采用石膏板吊顶,嵌入式筒灯照明,筒灯更具聚光性。

  • 02_餐厅
    餐厅区域由主卧分割出来的,独立的餐厅不会影响客厅区域。
  • 03_卧室
    女儿房现场打造多功能衣帽间,衣柜+梳妆台。保证了空间的舒适性和功能性。

    母亲房将原部分阳台区域纳入,床边现场打造木工衣柜,旁边预留矮柜位置。

    休闲角落。周末午后,泡一壶清茶,捧一本好书,在阳光下,享受舒适的闲暇时光

    主卧温暖的女儿房。白纱和星星点缀,打造梦幻的公主屋。

    衣帽间装上小吊灯,不怕化妆时光线不好啦。

    一层白纱分隔出2个区域,保证了空间的私密性。

  • 04_厨房
    设计封闭厨房,白色橱柜搭配暖黄色面包砖显得空间明亮开阔。
  • 05_卫生间
    卫生间空间充足,墙地面灰色玻化砖,淋浴区花砖点缀,淋浴区独立淋浴隔断。原窗户太大改小后便于壁挂镜柜
  • 06_其它
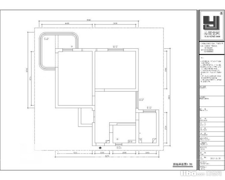
    方案图纸
免费预约
已有257人下单。预约短信将发您手机上!
复制成功
请使用浏览器自带的“分享”功能
可以把作品分享到微信及朋友圈
取消
预约提醒
亲爱的会员您**********的号码
今天已预约过20个商家已达到上限
请明天再来!