古道茶海

1510人0 人2019-07-05 发布
中式・其它・200㎡・半包17.23万・设计费1万
00_概述
  • 业主情况
    平时上班,茶室为了更好盈利兼具了书法培训功能切且平时以售卖茶叶为主。
  • 装修要求
    在松江园区平时客流量不多,加上因为园区里基本都是办公的,周边的设施偏高端所以业主希望设计的有特点一些
  • 设计师
    陈非凡
  • 设计理念
    采用新中式风格,更容易被大众所接受,对于包间的安排和空间的利用要更好地贴合业主的需求,物品放置有讲究
  • 01_客厅
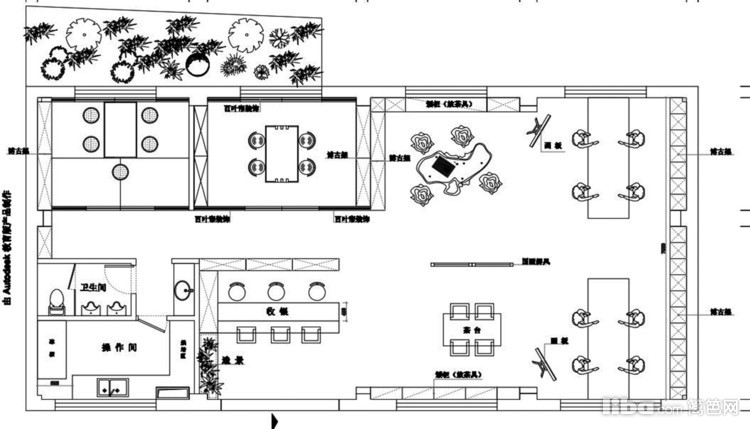
    园区里客流量少,包间就只设置了两间,然后做一个比较大空间的书法区域,这样有书法爱好者也可以来练练书法,一展身手。剩下空间就是一个根雕茶台,一张长桌茶台,收银区,后厨,洗手间。

    原户型是一个毛坯状态的长方形box,要做一个中式茶室,业主的需求是简单大气。

  • 02_餐厅
    进门景观

    进门收银台

    前台侧方景观

    中国讲究天圆地方,入室玄关这一巧妙的圆窗设计,摆一盆迎客松,与远景的鸟儿翠竹遥相呼应。

  • 03_卧室
    活动大厅景观

    大厅开放式茶台广景:喜欢热闹的顾客可以在动区阔步高谈

    一张长桌茶台,也是书法区,志趣高雅的顾客可以在书法区笔走龙蛇

    这是一个比较中正的包间,符合中式的方正,对称美,茶台正上方装了一盏新中式禅意小鸟吊灯

    两侧的展示柜可以摆放一些茶品、茶具,干枝花做点缀,窗外有假山流水翠竹,可以品茶、洽谈、赏景

    榻榻米小包间:喜欢安静的顾客可以在包间品茶赏景

    茶室一角

    包间过道,尽头可以通到后厨和卫生间

    茶室一角,通到后院

    后院:白色的小碎石和假山流水,水里游着几条嬉戏的小金鱼,郁郁葱葱,也成为了一处窗外景致。

    后院:利用屋后一片荒废的排水区,地上找平后过道位置铺上防腐木,靠墙种上一排翠竹

  • 04_书房
    茶室细节,茶品,茶具

    根雕茶台

    茶品置物格

    茶叶·小青柑很好喝哦~兼顾橘子的清香和普洱的醇香,生津止渴。

    根雕茶台茶具

    根雕茶台茶具

    茶具

    茶具

  • 05_厨房
    茶品、点缀小物件

    置物格:茶叶

    置物格:茶叶

    小鸟吊灯,酷似鸟儿站在枝头鸣欢,古意盎然,趣味十足

    置物格:茶具

    墙角的绿植,点缀空间

  • 06_其它
    古道茶海

    古道茶海开业啦!欢迎大家来喝茶哦~

免费预约
已有257人下单。预约短信将发您手机上!
复制成功
请使用浏览器自带的“分享”功能
可以把作品分享到微信及朋友圈
取消
预约提醒
亲爱的会员您**********的号码
今天已预约过20个商家已达到上限
请明天再来!