虹口区● 140平●法式轻奢

3580人1 人2020-02-09 发布
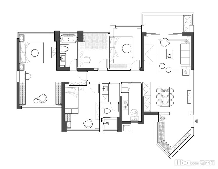
法式・四房・140㎡・半包17万・设计费1.4万
00_概述
  • 业主情况
    业主家是一套140平米的二手房装修
  • 装修要求
    业主喜欢法式风格,想要把三房改成四房
  • 设计师
    徐越波
  • 设计理念
    风格主要以法式风格,同时又捎带轻奢的搭配
  • 01_客厅
    沙发背景墙用简约的曲线元素与丰富的色彩过渡打造设计的时尚风情。蓝色墙漆与主卧的背景色一致,以过道为延伸,循序渐进,整体感强
  • 02_餐厅
    餐边柜上悬挂六项规格不一的装饰,既有家庭场景的复古油画又有精致典雅的镜子,看似毫无关联,但都极具生活气息,精心设计过的排列方式也让餐厅增添了别样的美感,成为家中一道亮眼的风景线。
  • 03_卧室
    主卧,最令人拍案叫绝的是粉与蓝的碰撞!当低饱和度的烟粉色遇上浓烈明亮的蓝色,对比鲜明却又和谐融洽,展现出张扬的浪漫。
  • 04_厨房
    蓝色,无论是天空蓝、海水蓝、宝石蓝还是孔雀蓝,都代表着一种洁净美好。如果厨房也用上一抹蓝色,想必也只能沉迷做饭不可自拔了!
  • 05_卫生间
    立式浴缸也让人十分惊喜,简洁的造型,一体式设计,每一个角落都闪烁着精致的光芒。
免费预约
已有910人下单。预约短信将发您手机上!
复制成功
请使用浏览器自带的“分享”功能
可以把作品分享到微信及朋友圈
取消
预约提醒
亲爱的会员您**********的号码
今天已预约过20个商家已达到上限
请明天再来!