现代简约●93平米●宝山区

10430人5 人2020-05-10 发布
现代简约・三房・93㎡・半包15.5万
00_概述
  • 业主情况
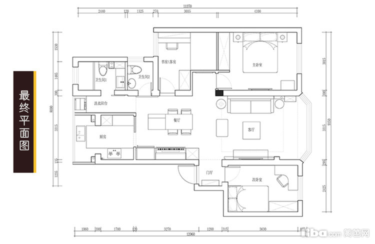
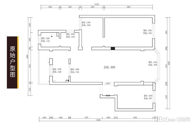
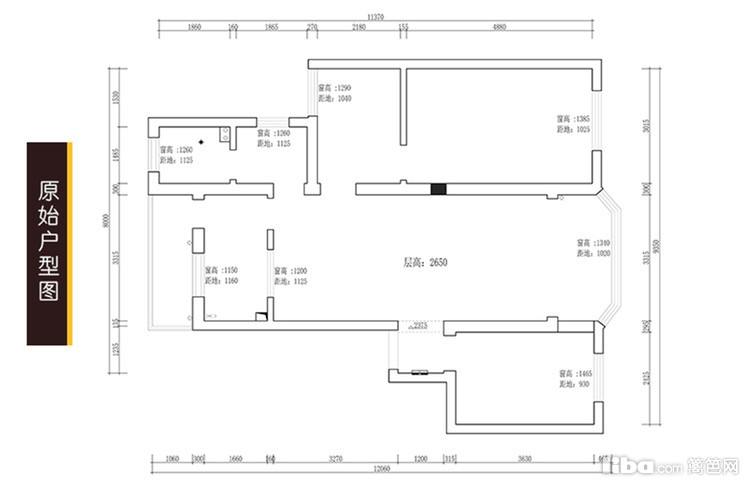
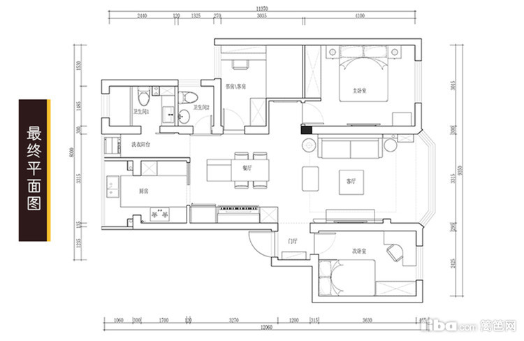
    三口之家。原始房型格局不合理,主卧为套间,缺少可变空间,卫生间为一个,并且过长,厨房阳台动线不合理。
  • 装修要求
    储物的需求,满足一家人需求。
  • 设计师
    王鹏
  • 设计理念
    让二室一卫的室内变成了三室二卫的新空间。整体基调以现代简约为主,局部加入金属元素,提升整个空间格调。
  • 01_客厅
    客厅以白色为主,搭配浅色木板与深色的家具,以金色为点缀,突显了空间层次感与立体感
  • 02_餐厅
    舒适的用餐环境有利于人们胃口大增,心情愉悦。壁灯在白色的墙面衬托下,显得更加温馨典雅,白色整体餐边柜,满足不同的收纳需求。
  • 03_卧室
    主卧中的粉色带来了清新甜美的气氛。深褐色的床显得沉稳大气,几何形的壁灯简洁时尚。

    女儿房添加了更多的粉色系设计,十足的少女心,好看又温馨。

  • 04_书房
    从主卧分离做了一个多功能房,添加了衣柜与榻榻米,即是书房又是客房。
  • 05_厨房
    对厨房空间进行了整体规划,加以灵活使用。将阳台一分为二,扩大了厨房的使用面积,U型设计功能区布局合理。
  • 06_卫生间
    主卫采用分离布局,洗、浴、卫各自独立使用互不干扰。白色增添了卫浴室的亮度,绿植营造出清新的氛围。
  • 07_其它
    玄关,由于门厅狭小,选用超薄型翻斗鞋柜,正好与门柱持平,不占地方,顶层又能置物。

    分离出的洗衣阳台

免费预约
已有910人下单。预约短信将发您手机上!
复制成功
请使用浏览器自带的“分享”功能
可以把作品分享到微信及朋友圈
取消
预约提醒
亲爱的会员您**********的号码
今天已预约过20个商家已达到上限
请明天再来!