简约灵动,素雅端庄新中式风

13921人3 人2020-05-22 发布
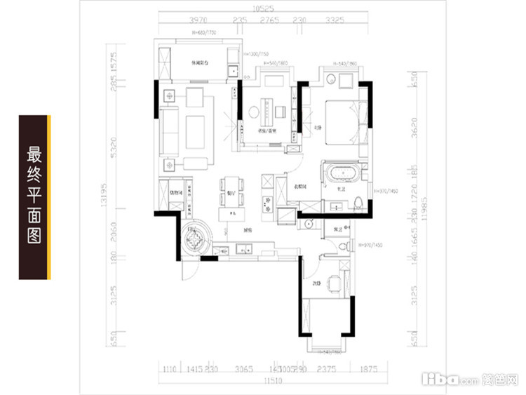
中式・三房・120㎡・半包22.25万
00_概述
  • 业主情况
    主要居住为夫妻两人,儿子读书在国外,假期回来居住。
  • 装修要求
    格局不够开阔,过道过多,空间没有得到合理利用。
  • 设计师
    王鹏
  • 设计理念
    开阔空间视野,运用借景的 处理手法,体现新中式的雅致
  • 01_客厅
    客厅整体设计简约灵动、素雅端庄。无论在色彩搭配还是空间布局方面,都运用的恰到好处,展现出来的空间视觉效果令人眼前一亮。
  • 02_餐厅
    开放式的厨房与餐厅连成一体,有种将餐厅包进厨房的感觉,动线设计很方便。简洁的白色与沉稳的深色,搭配精致的金属色水晶吊灯为空间融入时尚的气息,自由舒适,明亮而大气。
  • 03_卧室
    卧室色系在整体清新淡雅的基础上,用一些深色与金色元素陪衬点缀,给这个静谧的空间添加画龙点睛的一笔。
  • 04_书房
    新中式的书房设计是现代与历史的对话,也是文化的不断传承,思绪的交流与碰撞。
  • 05_厨房
    开放式厨房腾出来的空间特别大,而且采光性也特别好。没有隔断的空间或许会有油烟的问题,而超强的顶吸油烟机解决了这个问题,其开阔的空间感带来更加舒适的家居体验。
  • 06_卫生间
    卫生间地砖墙砖都有着泼墨般的纹路,别具质感,与深色的卫浴柜搭配,丰富了空间的层次感。
  • 07_阳台露台
    阳台铺上木纹的地砖配上自然质朴的中式流水摆件就是一个很好的休闲区。
  • 08_其它
    原户型开门直冲阳台,不聚财。王鹏老师将入门视线改变位置,做一个小玄关让大门转向,在转向了的玄关处放置镇宅的泰山石,又多出了后面的储物间。
免费预约
已有910人下单。预约短信将发您手机上!
复制成功
请使用浏览器自带的“分享”功能
可以把作品分享到微信及朋友圈
取消
预约提醒
亲爱的会员您**********的号码
今天已预约过20个商家已达到上限
请明天再来!