老房重整格局 放大空间感

14960人0 人2021-04-05 发布
现代简约・三房・130㎡・半包21.6万・设计费1.3万
00_概述
  • 业主情况
    三口之家,夫妻俩与女儿同住
  • 装修要求
    ①主卧的卫生间(暗卫)采光通风的问题; ②增加房屋内的储物收纳功能。
  • 设计师
    张明辉(首席设计师)
  • 设计理念
    利用空间放大术让老房拥有开阔空间感
  • 01_客厅
    简约明亮的家,以浅色为主调,追求简约的现代质感,阳光透过大落地窗洒进屋里,让原本就宽敞的家看着更敞亮。
  • 02_餐厅
    餐厅作为家的主要部分,布置好餐厅既能营造一个舒适的就餐环境,也会给整个空间增色,有个温馨,爱意满满的餐厅,一家人其乐融融,是多么幸福的一件事情。
  • 03_卧室
    卧室的装修并非只是摆设一张床这么简单的事情,在卧室装修中,有很多需要注意的地方。现在的卧室,室内功能越来越完善,舒适度也越来越高,基本可以满足主人的任何生活需求。

    床尾对面设置简约型通顶衣橱,内部包含晾衣空间、承物搁板及收纳抽屉柜,天花顶安装射灯提供集中光源。

  • 04_书房
    朝北房间做为独立书房,充裕且不压迫的收纳空间,补足了置放与展示功用,让生活融入兴趣。
  • 05_厨房
    相当重视料理环境的男屋主,盼望拥有宽裕操作台和通透的视线;设计师将北阳台融入厨房空间,U型厨房的设计五脏俱全,光感照人的视觉效果一扫厨房的油烟之气,打造出别样的清新氛围。

    腾出一个双门冰箱的宽度和厚度,把冰箱从不大的厨房解放了出来,黑边铝框联动移门有效解决油烟散透与沾染

    利用墙与原来的一个柱体的空间又做了一个休闲的一个吧台,增添了一份家的温馨感

  • 06_卫生间
    卫生间干净素雅,板岩灰砖一路铺叙,同步延展到淋浴墙面,烘托静谧气息。简单的布局设计,不仅实用空间也不显拥挤,整体效果也耐看。

    简单的布局设计,不仅实用空间也不显拥挤,整体效果也耐看。

    干湿分离保证了客卫空间的干净整洁

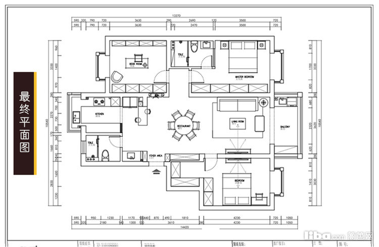
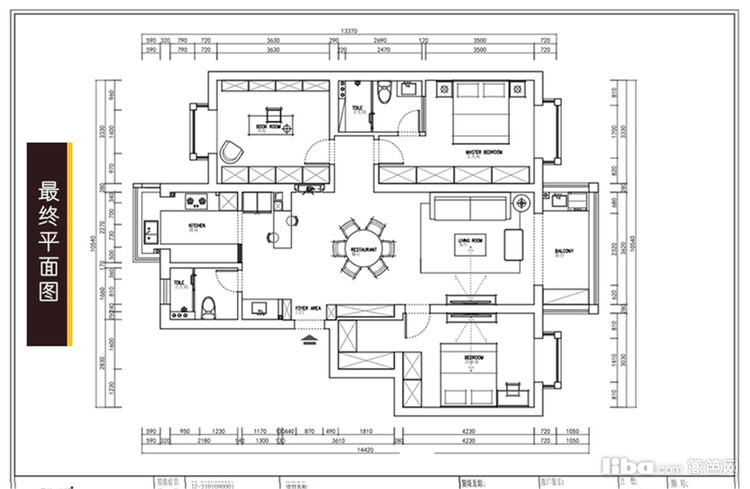
    压缩主卧空间,拉伸主卫使用面积,将浴室三大件安排成了L型,拆除主卫朝南墙体,利用长虹玻璃改善采光问题

  • 07_其它
    入户玄关,设计师通过调整次卧空间,空出客卫干区,用玄关柜重新隔断,不仅改善通风和采光情况,也加强餐厨的空间视觉感。

    借用次卧过道面积,调整次卧房门,增加了空间的宽敞,给业主女儿一个独立的衣帽空间和足够的收纳需求

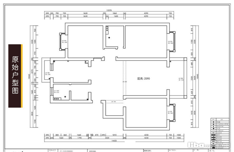
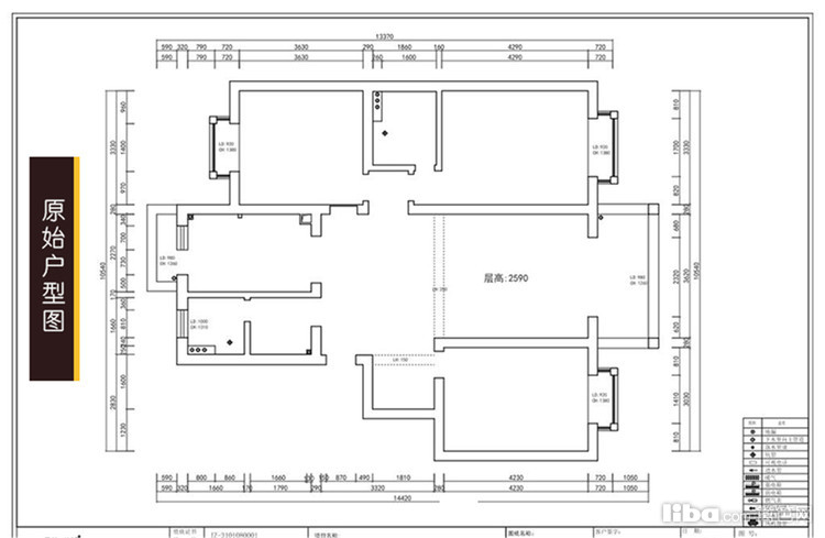
    从户型来看还是比较方正的而且原来的装修基础不错 只是色调比较暗沉 式样比较过时 显得房屋整体采光不佳

    老房焕然一新,设计师重整格局,利用空间放大术让老房拥有开阔空间感

免费预约
已有910人下单。预约短信将发您手机上!
复制成功
请使用浏览器自带的“分享”功能
可以把作品分享到微信及朋友圈
取消
预约提醒
亲爱的会员您**********的号码
今天已预约过20个商家已达到上限
请明天再来!