意式轻奢•浪漫与优雅的爱意之家
4101人1
人2021-05-30 发布
其它・三房・110㎡・半包20.7万・设计费1.8万

-
01_客厅
看腻了简约风北欧风?今天一起看点不一样的意式轻奢风,颜值超超超高!同时收纳和空间利用也十分巧妙,意式轻奢风融合了意大利的艺术气息和轻松氛围,在简约的空间布置中展现精致生活的品味。
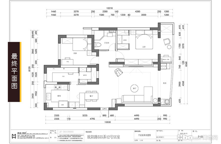
1:1还原
岩板,磁吸灯和槽型板的线形呼应,简洁而充满现代感,金属灯具点缀,提升了家的整体格调。
落地窗设计将自然带进了家中,装饰中充斥着简约线条、方圆结合的艺术感,去除单调,尽显个性。
色彩对于客厅空间氛围的烘托是起着非常重要的作用的,打破了黑白灰的静谧空间,增添了一种积极向上的氛围。
原先客厅进深过大,通过墙体的变动主卧增加了衣柜的同时,客厅借助凸起的墙做了内凹的电视背景墙。
生活需要仪式感,简约、极致、艺术的空间,每一件家具,每一个装饰,每一个细节,都像一件件精致的艺术品。
-
02_餐厅
少许跳跃的餐椅和油画,陡然的让空间多出了那么一些可爱,隐约点缀其中的金属元素,让空间质感得到大提升!
-
03_卧室
迷人的意式风格,因简约中透着奢华与时尚,具有空间宽敞、内外通透,最大限度引入自然光,大量使用现代风格最爱的直线,追求整体画面的流畅感。
一个神操作,不仅增加了储物功能还提高了档次, 主卧不仅有一排的衣柜,还有一个步入式衣帽间。
灯带的灯光隐藏在石膏板内,不仅对光感没有影响,同时看上去也比较高级;床头背景墙与床尾的衣柜完美匹配
线条、曲角、色调、材质、比例,意式轻奢时刻强调现代、简约、低调、时尚,同时不缺乏浪漫、唯美与优雅。
将客厅电视背景墙移出2公分左右,既不压缩客厅空间,又增加了主卧储物功能
南阳台很长,入口处在客厅,动线不方便,设计师将其一分为二,客阳台为生活阳台,而卧室就是休闲阳台啦~
阳台的拱门代替了千篇一律的推拉门,别有一番韵味~
爱马仕橙,黄铜色的点缀又显示出一种低调奢华的感觉。
次卧主色调是雾蓝色+白色系,一眼看过去,宁静舒缓。
-
04_厨房
想要多一间房?设计师实地勘察后,认为原餐厅空间大,在已有二个阳台基础上,那北阳台就可以利用,厨房在餐厅边上,U型布局,大面积储物柜满足收纳需求;而原厨房就改为书房。
最好在设计阶段,就能定下来要买的家电尺寸。这么做的好处是能精准定位,完美安排储物、插座位置等等。
黑边轨道门隐藏在冰箱内,将厨房边隐形式开放厨房,兼顾颜值与实用性~
-
05_卫生间
经过设计师的巧妙搭配,整个空间气质完全变了,自带不张扬的高级感。
爱意满满♥~
-
06_其它
卫生间对着大门?设计师将卫生间内移7公分左右,只需要一个小小的改变,就能秒变高级,让人感受到主人的独特气质。
开门见厅户型,无独立玄关,设计师以栏栅板做隔断,置入玄关柜
卫生间对着大门?将卫生间内移,只需要一个小小的改变,就能秒变高级,让人感受到主人的独特气质。
格局上原本是两房,厨房比较小,进门正对卫生间门,对于储物空间要求比较多。
通过对于空间尺寸和原有格局的分析研究,进行大胆调整,两房变为三房,增加了两个衣帽储物间。
免费预约
已有910人下单。预约短信将发您手机上!