浅色系清新又纯粹的幸福之家
1942人0
人2021-10-22 发布
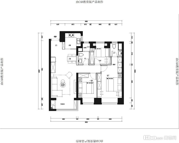
现代简约・三房・95㎡・半包14.5万・设计费0.85万

-
01_客厅
客厅整个公共的空间,没有多余的家居摆设,没有花哨的造型,也没有浓重的色彩,仅以简单而不失质感的空间设计,就给人带来一种宁静高贵的视觉享受。
以白灰+木色为主调,配上烟灰色的家具,全屋铺设温暖木质的地板,黑色线条的点缀,让冷暖色调调和的恰当。
在入户门处增加餐边功能柜,既解决厨房操作收纳空间又利用柜体形成半玄关隔断,作为进门后的缓冲区。
-
02_餐厅
一家人吃饭,重要的不只是吃什么,还有共聚一堂的亲密和交流,餐厅空间的重要性,在此刻展现。设计师以融合设计为主,用轨道玻璃门将餐厅与厨房两个空间隔离
既让厨房变得通透明亮,又随时可以形成四通八达的洄游动线。
为了家中老人和小孩的安全,地轨高度以不超过5mm为好。
-
03_卧室
以灰白极简+淡木色的结合,简洁不浮夸的设计,结合注重功能性且线条感流畅的家具两大特点,营造出惬意自在的舒适宜居空间,给人清新透气的感觉。
主卧室设计师同样选用了以灰白极简+淡木色的结合,高雅又温馨。
在床尾处打造储物衣柜+书桌柜组合,使功能多样性。
设计师压缩湿区尺寸,转化为过道柜,大量增加了储物功能,合理的利用了这个不起眼的空间。
长辈房的设计风格与主卧相同,简洁不浮夸的设计
结合注重功能性且线条感流畅的家具两大特点,营造出惬意自在的舒适宜居空间,给人清新透气的感觉。
儿童房面积不大,设计师借助客卫的空间,客卫与儿童房隔墙重新规划
保障公共卫生间足够使用的情况下将多余的空间转为儿童房衣柜
增加儿童房收纳空间,满足儿童成长过程中各项需求(居住+收纳+学习+玩耍)。
-
04_厨房
设计师以融合设计为主,用轨道玻璃门将餐厅与厨房两个空间隔离,既让厨房变得通透明亮
,又随时可以形成四通八达的洄游动线。
色彩以浅灰色为主,统一的色调和统一的元素,得到一个既温暖又轻盈的厨房空间。
-
05_卫生间
浅灰色的卫生间,清爽通透感很棒!同时浅色系的瓷砖,会更显空间开阔,非常适合卫生间这类小空间。
-
06_其它
原户型没有独立的玄关,空间没有秩序感,设计师在玄关左侧延伸墙面打造嵌入式置顶玄关柜,也进一步放大了厨房空间。
内嵌式的上下柜很实用,超省空间,整齐划一,很有层次感。
结合次卧飘窗结构,设计师将房间门洞移位,腾出更多的储物空间。
在两边比较凸显层高的吊顶的基础上,设计师采用磁吸轨道灯的效果,干净利落,简洁明快。
免费预约
已有910人下单。预约短信将发您手机上!