装修首页
著峰设计装饰
作品库
遇上彩虹人生
著峰设计装饰
免费预约
收藏
分享
遇上彩虹人生
192人
0 人
2015-09-29 发布
现代简约・三房・132㎡・半包12.9万・设计费0.4万
00_概述
业主情况
业主是一个90年后的小夫妻,对于颜色非常的敏感。
装修要求
主卧独立的卫生间和衣帽间
设计师
首席设计师
设计理念
室内空间主要以黑、白、个性张扬的时尚的配色为主,设计感十足的雅致饰品随性的摆设,彰显客户的品味。
01_客厅
沙发背景大气的咖啡色,搭配别具一格的沙发,让空间更加清新自然。
02_餐厅
餐厅彩虹般的窗帘是个亮点。
03_卧室
卧室的大气软包背景,搭配简欧的床,有混搭的味道。
04_书房
书房的书柜现场用板材木工制作的,效果很漂亮。
05_卫生间
简洁的白色卫生间,没有过多的花哨。
06_其它
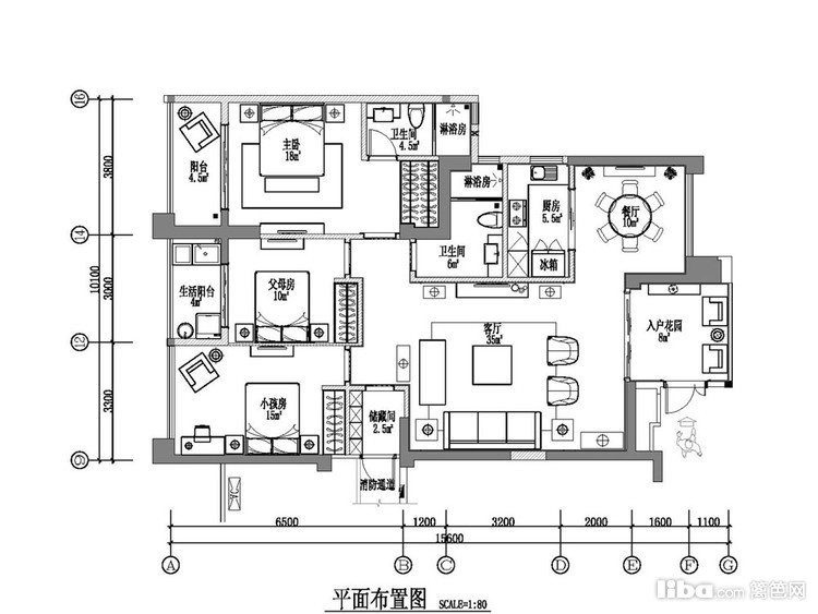
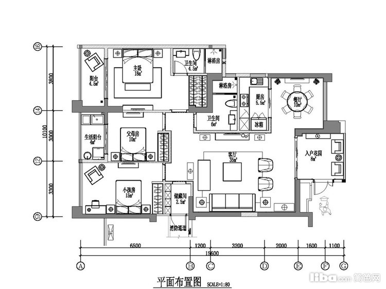
平面布置图
免费预约
已有
100人
下单。预约短信将发您手机上!
你可能还喜欢以下作品
LOFT | 一房
风雅
7
现代简约 | 一房
简美小户型
7
美式 | 两房
简美
7
中式 | 三房
现代中式
8
预约
分享
收藏
返回顶部
报名成功
复制成功
请使用浏览器自带的“分享”功能
可以把作品分享到微信及朋友圈
微信好友
微信朋友圈
新浪微博
QQ空间
链接复制
取消
按钮
预约提醒
亲爱的会员
您**********的号码
今天已预约过20个商家已达到上限
请明天再来!