装修首页
日之横设计
作品库
住在时光里(老洋房)
日之横设计
免费预约
收藏
分享
住在时光里(老洋房)
12640人
1 人
2016-10-23 发布
LOFT・一房・30㎡・全包16万・设计费1.5万
00_概述
业主情况
业主是一位年轻帅哥
装修要求
满足厨房、餐厅、客户、卧室、洗手间等功能。
设计师
张鑫全
设计理念
保留老房的味道,功能化的扩大。
01_客厅
客厅采用樱桃木饰面板做墙面,保留老房的味道。电视墙做在楼梯的下面,充分利用空间。
02_餐厅
餐顶吊顶上采用了彩色的地板装饰,别具一格。
03_卧室
二楼做为卧室,白扣板使空间显得更大。屋顶开了天窗,房间采光更好。
04_卫生间
洗手间里也尽量保留老房的味道。
05_其它
平面图
一层平面图
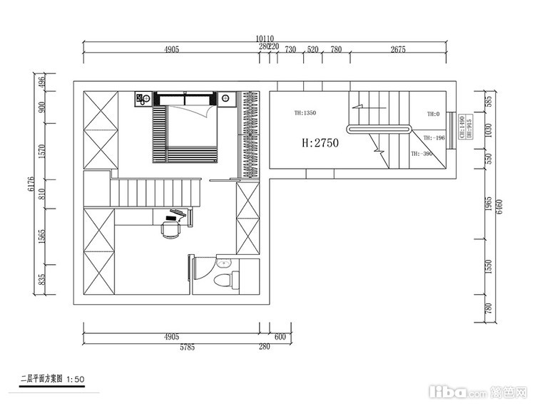
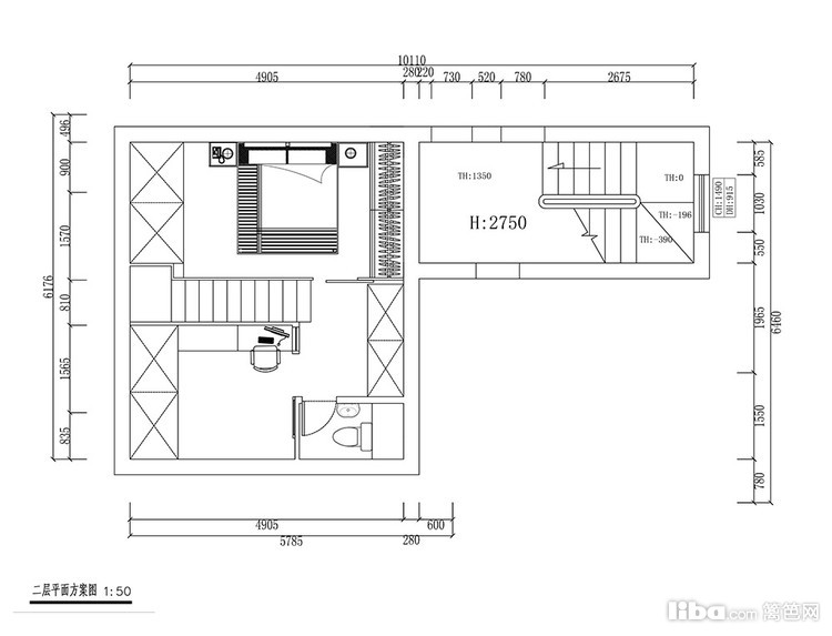
二层平面图
免费预约
已有
2510人
下单。预约短信将发您手机上!
你可能还喜欢以下作品
现代简约 | 两房
现代简约|简简单单可抵漫长岁月
16
现代简约 | 两房
大户型装修必看
13
现代简约 | 两房
90后夫妻的居家空间~
9
现代简约 | 三房
简约与优雅的融合:高级中性风格
12
预约
分享
收藏
返回顶部
报名成功
复制成功
请使用浏览器自带的“分享”功能
可以把作品分享到微信及朋友圈
微信好友
微信朋友圈
新浪微博
QQ空间
链接复制
取消
按钮
预约提醒
亲爱的会员
您**********的号码
今天已预约过20个商家已达到上限
请明天再来!