132平原木 兴梅路

5743人5 人2021-05-07 发布
日式・三房・90㎡・全包13万
00_概述
  • 业主情况
    本案例女业主作为当代“佛系女青年”
  • 装修要求
    向往着日式、略带禅意的家居风格,也想要北欧的简约格调,特别是下班回到家里,就算不饿,也会想着拿点零食
  • 设计理念
    全屋的整体基调是白色的墙壁+原木色家具,没有华丽的装饰品,却依然掩盖不住它与生俱来的气质。
  • 01_客厅
    客厅空间以浅暖灰和原木色搭配,清新温柔。光源的设计上采用无主灯作为主要照明,做了反光灯和柜内灯作为辅助照明,在不需要射灯作为主要照明时可单独开反光作为照明,灯带光晕柔和,更加温馨。

    大量留白的墙体、原木和靠墙放置的素雅饰品,彼此之间互相关联,营造出清雅的空间氛围。

    接近正午,阳光透过朦胧,乘着风,在角落洋洋洒洒。

  • 02_餐厅
    餐厅
  • 03_卧室
    主卧也延续了整体的家装风格,衣柜、床柜,甚至地板都是原木制作,淡黄的色调让空间显得柔和又舒适。

    飘窗采用原木色的饰面板来整体饰面,木质和窗帘结合,是一种恰到好处的舒适感

    书房做了榻榻米,平时因工作需要,居家办公还是需要的

    榻榻米平时也可以作为休闲饮茶的区域,朋友过来也可以小住一阵。

    卧室电视柜部分用了组合柜的方式来做,整面柜体扩大了收纳空间。

    次室选取了干净素雅的中性色,延续了整体的风格,突出温柔与宁静的质感,更能体现沉淀过后的内敛谦和。

  • 04_厨房
    原木色橱柜+大理石墙砖,搭配起来也是非常的和谐,正所谓“厨房设计得好,一日三餐不用恼”。在这样的空间里,连做饭也变成了一种享受生活。

    =

  • 05_卫生间
    卫生间将洗手台外置,提高了日常使用效率。原木色调的墙体与大理石墙砖的纹理相呼应,视觉上营造了延伸的效果。

    隐形门的设计不只是美观大方,更是为了挡风水。

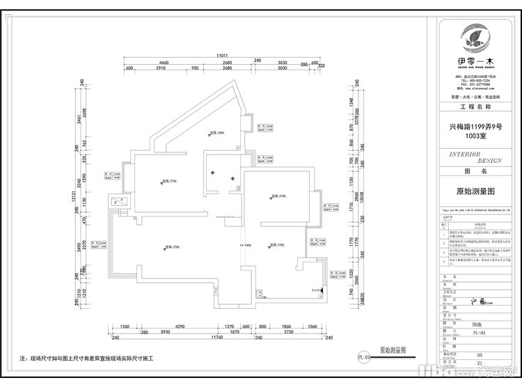
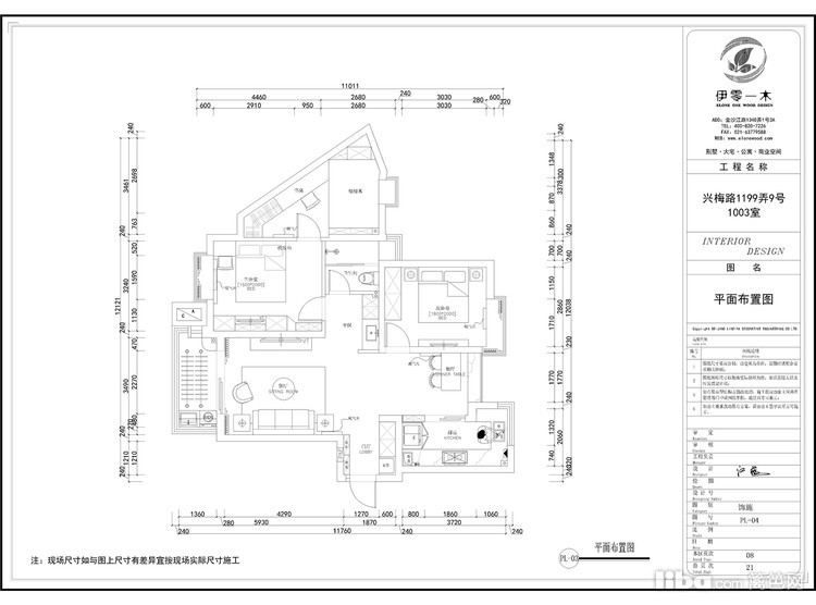
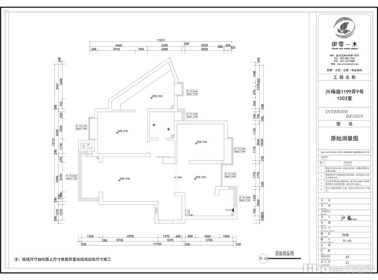
  • 06_其它
    户型图
免费预约
已有90人下单。预约短信将发您手机上!
复制成功
请使用浏览器自带的“分享”功能
可以把作品分享到微信及朋友圈
取消
预约提醒
亲爱的会员您**********的号码
今天已预约过20个商家已达到上限
请明天再来!