装修首页
伊零一木空间设计
作品库
高尚领域
伊零一木空间设计
免费预约
收藏
分享
高尚领域
4192人
1 人
2021-06-25 发布
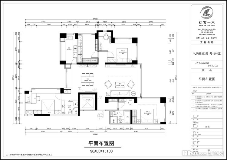
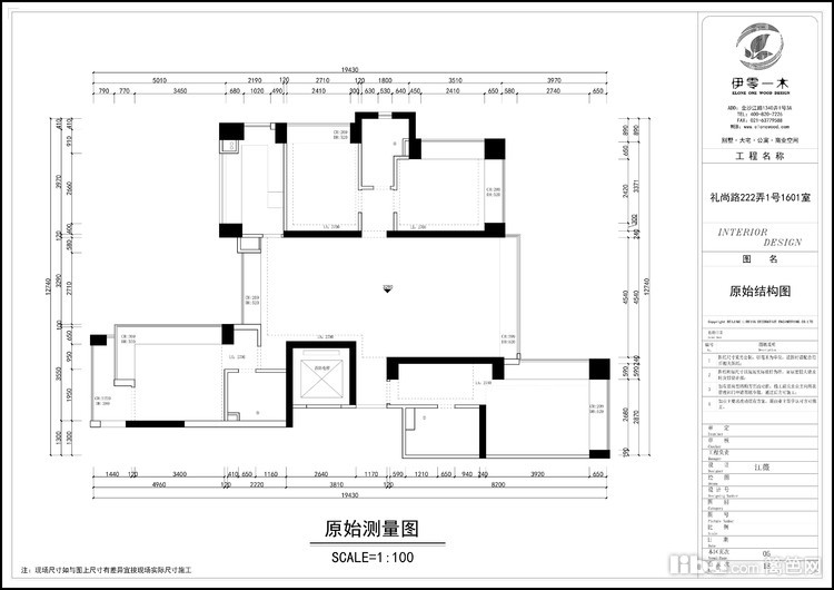
现代简约・两房・160㎡・半包9.7万・设计费1.65万
00_概述
业主情况
年轻夫妻婚房
装修要求
简约
设计理念
设计源于生活
01_客厅
客厅
02_餐厅
餐厅
03_卧室
卧室
04_其它
其它
免费预约
已有
90人
下单。预约短信将发您手机上!
你可能还喜欢以下作品
现代简约 | 两房
128平现代简约 【迷藏】
17
日式 | 三房
132平原木 兴梅路
28
现代简约 | 三房
89平全包12万【原调木语】
13
现代简约 | 三房
雀舎
19
预约
分享
收藏
返回顶部
报名成功
复制成功
请使用浏览器自带的“分享”功能
可以把作品分享到微信及朋友圈
微信好友
微信朋友圈
新浪微博
QQ空间
链接复制
取消
按钮
预约提醒
亲爱的会员
您**********的号码
今天已预约过20个商家已达到上限
请明天再来!