丽正路轻奢风

6543人1 人2022-07-22 发布
低调奢华・一房・70㎡・半包6.5万
00_概述
  • 业主情况
    本户型的居住是一位追求品质的单色女性
  • 装修要求
    以现代都市生活为审美考量,设计将客餐厅连通一体,构建现代家庭生活的开放式格局。
  • 设计师
    廖旭东
  • 设计理念
    取材于人文与自然,融合颇具西方韵味的花艺,于当代都市图景的营造中,将生活与自然的意趣容纳其间。
  • 01_客厅
    取材于人文与自然,设计臻选装饰挂画、现代感的金属环形吊灯
  • 02_餐厅
    以现代都市生活为审美考量,设计将客餐厅连通一体,构建现代家庭生活的开放式格局。
  • 03_卧室
    落笔于都市生活的艺术情致,设计运用深浅清透的设色、经典雅致的软饰,令空间浸润着美学的层次、人文的温度、现代的简雅。
  • 04_厨房
    简约风厨房在设计上强调功能性和舒适性,强大的收纳功能是简约厨房的一部分。将空间根据人体实际的所需,进行精致的组合。
  • 05_卫生间
    卫生间的色调简洁大方,设计既具实用性,又让整个空间看起来充满设计感。
  • 06_其它
    洗衣机和烘干机组合摆放,方便及时处理衣物。

    洗衣房

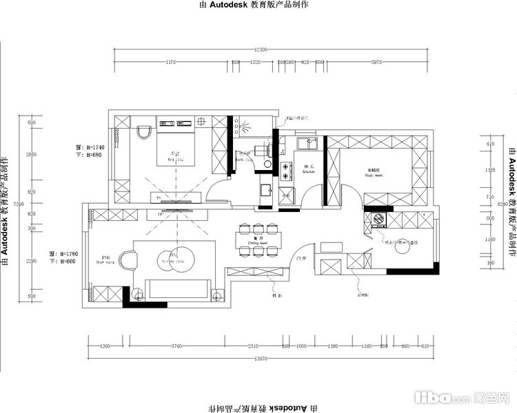
    平面布置图

    原始图

免费预约
已有3211人下单。预约短信将发您手机上!
复制成功
请使用浏览器自带的“分享”功能
可以把作品分享到微信及朋友圈
取消
预约提醒
亲爱的会员您**********的号码
今天已预约过20个商家已达到上限
请明天再来!