现代简约2居室装修设计

554人0 人2020-06-09 发布
现代简约・两房・22㎡・全包22万
00_概述
  • 业主情况
    小区:世博花园 户型:2室2厅 风格:现代简约 设计师:庞利军
  • 装修要求
    简约风,设计合理
  • 设计理念
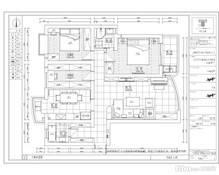
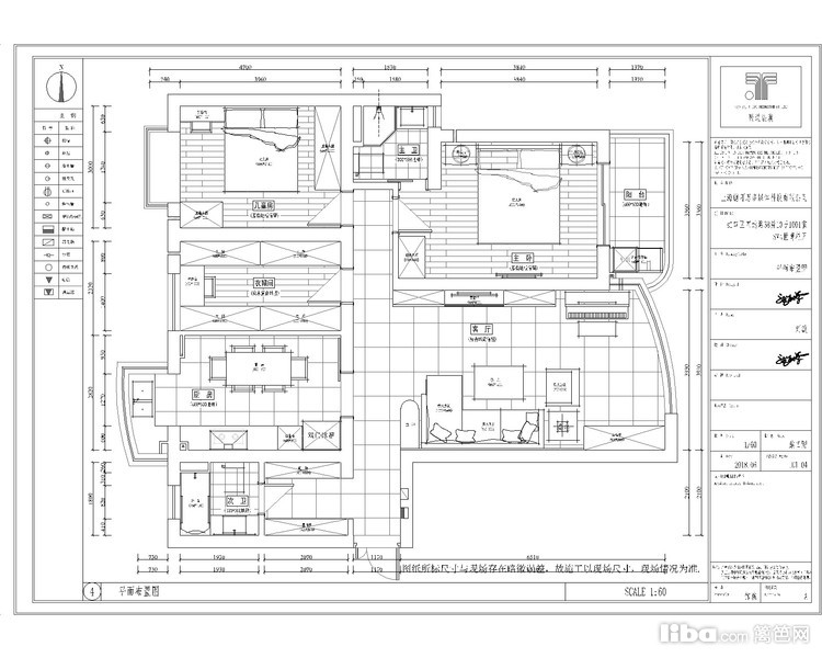
    本案是一个2室2厅的装修案例,房屋的格局还算合理,设计师根据业主一家三口的设计需求,将厨房与餐厅合二
  • 01_客厅
    静谧的客厅是业主倾向的氛围,设计上也遵循了业主的服务需求。大面积的书柜,让爱读书的业主能够将大量的书籍得以收纳整齐。

    入户即是一条长长的走廊,一侧装置了顶天立地的定制柜,可以满足一家三口的鞋靴收纳需求,简约又实用。

  • 02_厨房
    餐厅与厨房采用一体化设计,一字形厨房台面与定制柜,极大提高了空间利用率。长形餐桌既能满足一家三口平时需求,还可以留出一些过道,视觉上有了拉伸的效果,让整个空间看上去不显拥挤。
  • 03_卫生间
    即使是简单装饰的卫生间,也能看出业主的独有个性。水箱隐藏式马桶以及“一键全包”式收纳柜,这两处的设计简约又实用,二者兼得。
  • 04_其它
    房屋是两室两厅的格局,每个空间的区域面积相对不小,所以不会有让人觉得狭小局促的感受。开放式厨房与餐厅在一个空间内,这样可以大大提高空间利用率,同时增加用餐的便捷性。

    入户即是一条长长的走廊,一侧装置了顶天立地的定制柜,可以满足一家三口的鞋靴收纳需求,简约又实用。

    U型衣帽间,自带化妆台,满足了女主人的诸多梦想。

免费预约
已有334人下单。预约短信将发您手机上!
复制成功
请使用浏览器自带的“分享”功能
可以把作品分享到微信及朋友圈
取消
预约提醒
亲爱的会员您**********的号码
今天已预约过20个商家已达到上限
请明天再来!