适合爸妈养老的家,不规则户型

464人0 人2020-06-16 发布
现代简约・三房・190㎡・全包40万
00_概述
  • 业主情况
    小区名称:国中公寓 建筑面积:190㎡ 风格:现代简约
  • 装修要求
    本案例是一对老年夫妇养老的居所,儿子定居在澳大利亚,夫妻俩以前都是从事机械设计工作,兴趣爱好广泛。
  • 设计理念
    讲究生活品味及精神层面的享受,倡导现代、简洁又不失温馨、和谐,经过对客户的沟通了解之后选定简约时尚的
  • 01_客厅
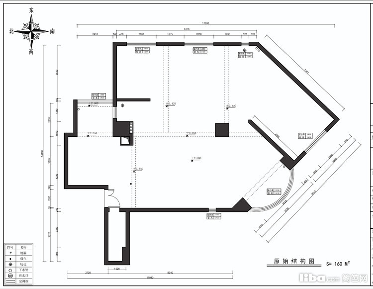
    户型本身的不规则增加了设计难度,以及客户本身对户型的设想很多,经过功能需求的沟通以及生活方式的讨论。

    最终客户还是选择了我为他们设计的生活方式,主卧位置做了调整之后,整体规避掉不规则的户型空间。

    国外的生活习惯故采用开放式厨房的设计,开放的厨房与客餐厅相连、相互借势,为提升视觉冲击力。

    做到物有所值,稳重又不失大气,空间内用细节、材料和搭配,来营造特有的气氛。

  • 02_厨房
    开放式的设计使得整个空间动线流畅,即使身在厨房也可以与客厅的家人自在聊天。厨房与餐厅间的大理石操作台,更便于处理菜品,同时还能作为两个功能区的隔断。
  • 03_其它
    生活的品质体现在每个小细节处。即使是卫生间,也要放上一束鲜花,让幸福蔓延到家里的每个角落。
免费预约
已有334人下单。预约短信将发您手机上!
复制成功
请使用浏览器自带的“分享”功能
可以把作品分享到微信及朋友圈
取消
预约提醒
亲爱的会员您**********的号码
今天已预约过20个商家已达到上限
请明天再来!