94㎡老房翻新,宽敞2居

538人0 人2020-07-13 发布
混搭・两房・94㎡・全包20万
00_概述
  • 业主情况
    小区:瑞虹新城 风格:现代简约搭配新中式 房型:2室2厅 面积:94㎡ 设计师:庞利军
  • 装修要求
    设计方面宽敞,敞亮,房间利用率好
  • 设计理念
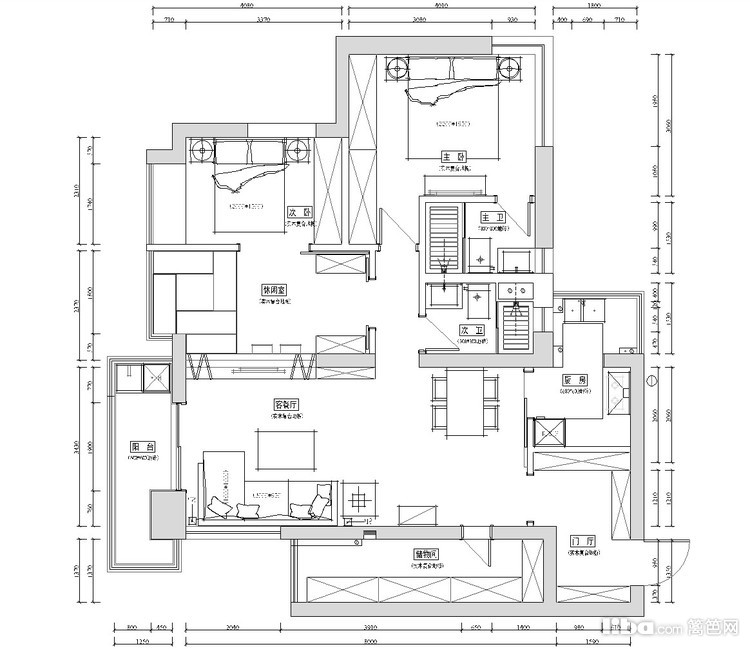
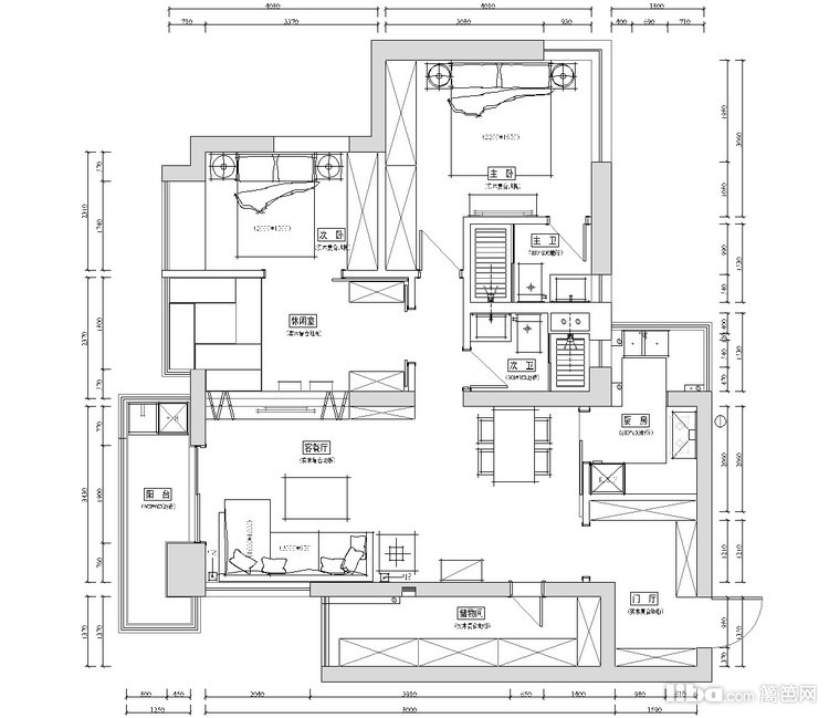
    本案是一个94㎡的老房翻新,设计师结合业主的生活习惯,精心设计,打通原始布局,将光纤引入室内,打造一
  • 01_客厅
    为了尽可能多的增加储藏功能,设计师利用门厅一侧的长形空间打造成一个储藏空间,整高的储物柜,满足了多种储存需求。即使是作为衣帽间之用,也是非常适合的。
  • 02_餐厅
    原先的客厅被分割成两个独立的区域,分别为新的客厅与起居室,同时也囊括了书房的功能区。

    原先的客厅被分割成两个独立的区域,分别为新的客厅与起居室,同时也囊括了书房的功能区。

  • 03_卧室
    主卧的设计是简化了的新中式,实木的加持多了分宁静与自然,搭配上白色床品,细节处配以蓝色点缀,瞬间提升了整体格调。

    原本不大的次卧,其衣柜都选择了移门,不会受到面积的限制,同时也颇有一番风味。

    背景墙被水墨印象给填满了,充满着诗情画意,让卧室更具艺术性。

  • 04_厨房
    厨房采用了长形设计,可以减少宽度,提高空间的利用率。同时,白色反光瓷砖、玻璃门的使用,增加了空间的通透性。
  • 05_其它
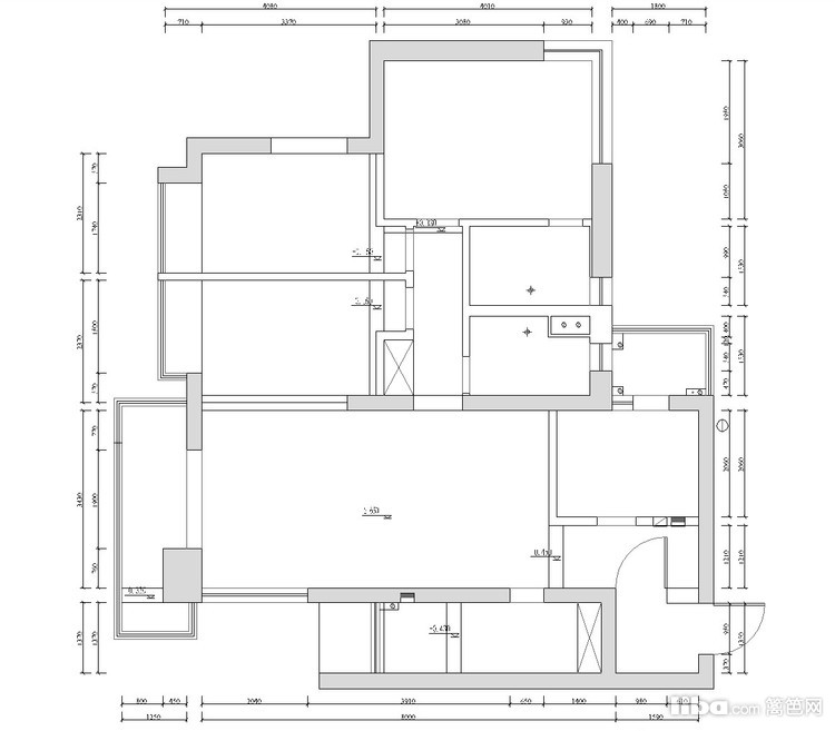
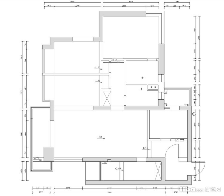
    平面图与屏幕布置图
免费预约
已有334人下单。预约短信将发您手机上!
复制成功
请使用浏览器自带的“分享”功能
可以把作品分享到微信及朋友圈
取消
预约提醒
亲爱的会员您**********的号码
今天已预约过20个商家已达到上限
请明天再来!