聆听轻语
        	512人0
人2018-06-22 发布
 			现代简约・两房・78㎡・全包12万・设计费0.3万
 			
 			
            	00_概述
            	
                	- 
                    	业主情况 本案业主为时尚的女白领,和父母居住。喜欢北欧,喜欢简约、两者碰撞下,营造出这温馨简约家。 
- 
                    	装修要求 因为一家三口居住,房子面积不大,所以需要较多收纳空间也希望通过软装搭配提升整个空间的品味。 
- 
						设计师 刘婷 
- 
	                    设计理念 定位北欧简约,整体色调以白色为基调,以灰色做软装大色系,黄色作为空间提亮之笔。 
 
	 		
	 			
	                        - 
	                            01_客厅 客厅整体以白色为基调,搭配灰色沙发与茶几、局部的木元素,并以柠檬黄的抱枕贯通整体空间,有趣的空间色彩让整体空间更加跳跃灵动,更富有层次感,放置的落地镜也让生活更有味道。 
	                                      选用黄蓝相兼的地毯与抱枕呼应,原木色茶几及电视柜营造出一种温馨.浪漫的感觉。 
 
	                                      只想和你有个属于我们自己的家,无关大小,只想和你一起享受生活的美好。 
 
	                                      只想和你有个属于我们自己的家,无关大小,只想和你一起享受生活的美好。 
 
- 
	                            02_餐厅 餐厅成为一个相对独立的空间。餐桌椅选用轻巧的原木色款式,弱化了大件家具的空间存在感,给人通透的视觉效果。 
- 
	                            03_卧室 卧室整体空间经过设计师的巧妙规划和风格色彩的把控,空间变得简洁大方不失韵味,一眼望去,仿佛带着阳光的味道。 
	                                      套娃. 寓意着你中有我、我中有你,我们永不分离。 
 
	                                      为了充分利用空间,次卧设计了靠墙式衣柜与书桌柜,既具备大量的储物空间,又让进门空间更开阔。 
 
	                                      为了充分利用空间,次卧设计了靠墙式衣柜与书桌柜,既具备大量的储物空间,又让进门空间更开阔。 
 
- 
	                            04_厨房 L型厨房,墙面采用当下流行的小白砖来搭配木纹色的橱柜。 
- 
	                            05_卫生间 偏暗色的泥灰系墙地砖、天然石材与白色洁具搭配浑然一体、营造自然舒适氛围。 
- 
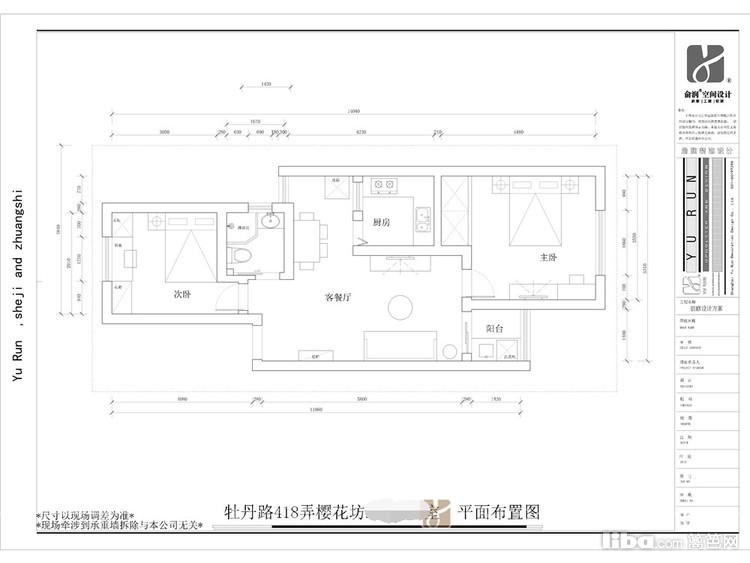
	                            06_其它 平面图与原始户型图 
	                                      本案平面布置图 
 
	                                      本案原始户型图 
 
 
	 		
	 			免费预约
	 			已有5536人下单。预约短信将发您手机上!