人间四月天
        	1524人2
人2018-08-04 发布
 			美式・三房・140㎡・全包40万・设计费2万
 			
 			
            	00_概述
            	
                	- 
                    	业主情况 本案业主为一家四口,女业主是全职太太,男业主做工装工程。一个女儿在国外读书,一个女儿还在上高中。 
- 
                    	装修要求 女业主和女儿都钟爱美剧,男业主也希望家里的装修可以较沉稳经得起岁月的沉淀、收纳储藏一定要多 
- 
						设计师 李康 
- 
	                    设计理念 本案设计是为了在繁忙的工作之余,给自己和家人一个愉快的生活空间,设计风格定位美式。 
 
	 		
	 			
	                        - 
	                            01_客厅 客厅米色大理石与深色木饰面的运用,给人以沉稳之感。精炼耐看的装饰线条,结合美式的家具饰品,空间的尺度大气又不失精致和亲切。 
	                                      客厅只做了简单的围合式吊顶,地面沙发区域设计了拼花瓷砖,配以风格统一的沙发和茶几边桌 
 
	                                      厚重的家具有着细腻精致的细节。来自大自然的一抹绿色,给人一种贵而不露的内敛与含蓄。 
 
	                                      皮木结合的深色实木家具,令客厅空间浑厚大气 
 
- 
	                            02_餐厅 简欧味道的餐桌椅,蜿蜒柔美的桌沿曲线,稍显夸张的桌腿椅腿造型,厚实舒适的皮座垫和皮靠背,将华丽和婉约平衡得恰到好处。在艺术风景画铺陈下,一切装点得刚刚好。 
- 
	                            03_卧室 卧室作为主人的私人空间,主要以实用舒适和功能性为考虑的重点,整体在卧室灯饰的选择,造型优雅的铁艺灯与美式风格的主题相符,同时也不会显得太过繁复 
	                                      温馨甜美的公主房。高纯白实木床、围合圆吊灯,浅色打底,嫩色点缀,搭配出清新可爱的韩式范儿。 
 
	                                      孔雀蓝,高贵与优雅,华丽与灵秀,却又带着自身独有的静谧和舒适 
 
- 
	                            04_书房 书房延续了客厅的大气稳重基调,配以同色系的木地板,给人更安逸闲静之感。 
- 
	                            05_厨房 爱上餐厨时光,从最美丽的厨房开始!棕咖色橱柜,暖色调的仿古砖,一同营造美好的厨房时光。 
- 
	                            06_卫生间 穿过步入式衣帽间,就来到了主卫。与客卫相比,这里少了一分凉意,多了一份温润和雅致。 
	                                      次卫的干湿分区简洁明了。 
 
- 
	                            07_其它 地面采用了800*800的全抛釉大砖并精心勾勒必要的拼花,区划分明。 
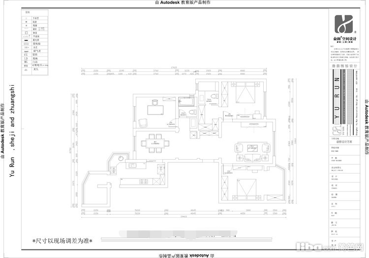
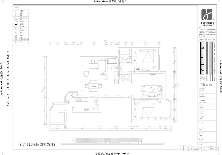
	                                      平面布局图 
 
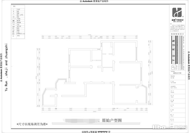
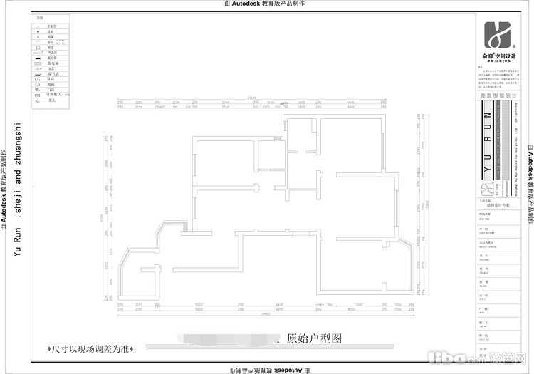
	                                      原始户型图 
 
 
	 		
	 			免费预约
	 			已有5536人下单。预约短信将发您手机上!