装修首页
伊零一木空间设计
作品库
文艺北欧
伊零一木空间设计
免费预约
收藏
分享
文艺北欧
2572人
0 人
2021-03-31 发布
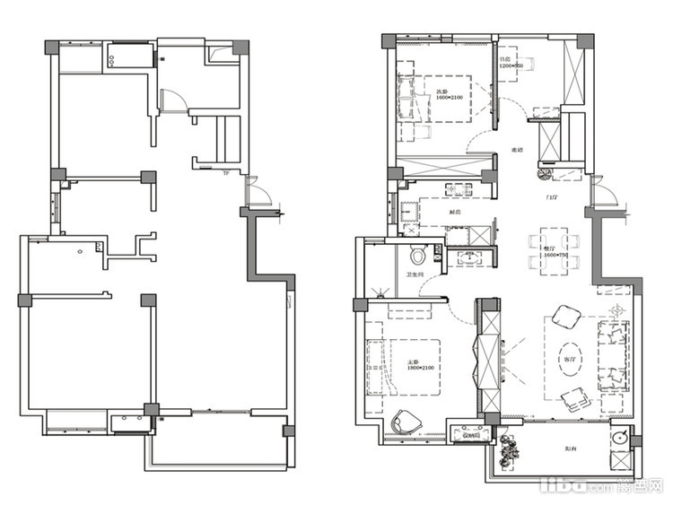
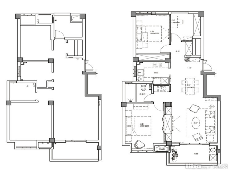
现代简约・两房・84㎡・半包12万
00_概述
业主情况
一家三口
装修要求
男主人希望是符合他身份的文艺风格
设计理念
设计师决定在文艺现代风格中寻找都市生活的格调,将户型注入都市灵魂,以文艺和北欧为主题
01_客厅
客厅
02_餐厅
餐厅
03_卧室
卧室
04_书房
书房
05_厨房
厨房
06_卫生间
卫生间
07_其它
户型图
免费预约
已有
90人
下单。预约短信将发您手机上!
你可能还喜欢以下作品
现代简约 | 两房
128平现代简约 【迷藏】
17
日式 | 三房
132平原木 兴梅路
28
现代简约 | 三房
89平全包12万【原调木语】
13
现代简约 | 两房
高尚领域
17
预约
分享
收藏
返回顶部
报名成功
复制成功
请使用浏览器自带的“分享”功能
可以把作品分享到微信及朋友圈
微信好友
微信朋友圈
新浪微博
QQ空间
链接复制
取消
按钮
预约提醒
亲爱的会员
您**********的号码
今天已预约过20个商家已达到上限
请明天再来!