阳光威尼斯

540人0 人2019-08-02 发布
低调奢华・两房・99㎡・半包10万
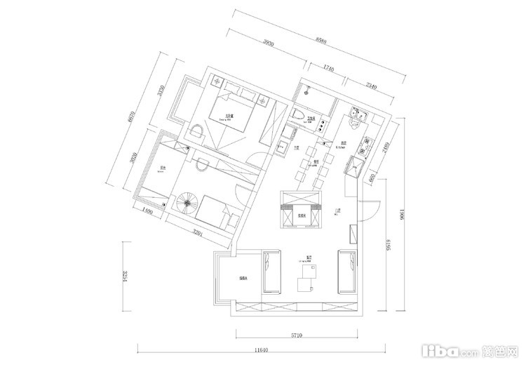
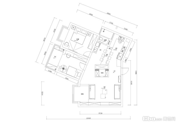
00_概述
  • 业主情况
    一家三口居住
  • 装修要求
    装修前楼上楼下看了其他家,真是很失望。因为户型限制,家家户户都一样,餐厅位置处理的很糟糕。只能寄希望
  • 设计师
    KIKI
  • 设计理念
    房型不是很好,改善动线的同时要提高空间的利用率
  • 01_客厅
    客厅是家的活动中心。突破常规电视墙、沙发相对而放的形式,放弃电视,直接装投影幕布,特意挑选了低矮的沙发,平时两个人可以各踞一方,或坐或躺看电影。
  • 02_餐厅
    因为餐厅位置不规则,餐桌采用细木工板+饰面板现场制作。墙面和顶面的木格栅造型让整个空间更具整体性和延伸感。
  • 03_卧室
    主卧室背景墙地板上墙,上半部分石膏板做灯槽。
  • 04_厨房
    经典的黑白配色、无把手玻璃烤漆柜门、嵌入式电器为厨房更添一分简洁利落。
  • 05_卫生间
    卫生间洗漱台用的岩板,质感不错。
免费预约
已有490人下单。预约短信将发您手机上!
复制成功
请使用浏览器自带的“分享”功能
可以把作品分享到微信及朋友圈
取消
预约提醒
亲爱的会员您**********的号码
今天已预约过20个商家已达到上限
请明天再来!