静安馨苑

562人4 人2020-02-12 发布
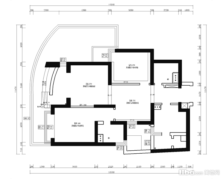
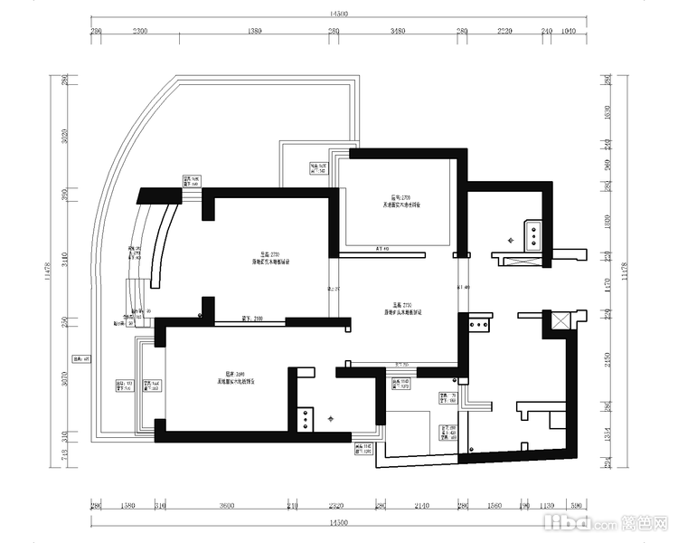
现代简约・两房・97㎡・半包16.9万・设计费3万
00_概述
  • 业主情况
    常住一人,偶尔女儿回国同住
  • 装修要求
    希望功能符合现代要求,公共区域的面积增加,整体空间开敞,视野中减少城市不和谐元素。
  • 设计师
    刘楠
  • 设计理念
    还原自然不散乱,纯朴有用心,舒适又有型之生活本来该有的面目。
  • 01_客厅
    原来的次卧改造成开放式厨房,极大的改善了公共区域的空间感,站在玄关,光线贯穿整个空间。餐客厅用两种不同的材料不规则划分既有层次感,又能显得活泼不压抑。
  • 02_卧室
    原本主卧房门位置封闭,进门通道空间变成了三分离的卫生间,房门采用隐形门形式调整到电视背景墙。
  • 03_卫生间
    干区和洗衣操作区结合,设置在原本餐厅区域,解放了阳台和卫生间空间。
  • 04_阳台露台
    阳台的茶桌空间是我和猫猫最喜欢的一个角落,阳台一侧的壁龛结合老灶台造型,很有特色。
  • 05_其它
    将原来的次卧室跟厨房对调,原本餐厅区域结合了卫生间干区和洗衣操作空间。厨房和餐厅连贯在一起,空间变得很开阔。
免费预约
已有490人下单。预约短信将发您手机上!
复制成功
请使用浏览器自带的“分享”功能
可以把作品分享到微信及朋友圈
取消
预约提醒
亲爱的会员您**********的号码
今天已预约过20个商家已达到上限
请明天再来!