新城公馆

3375人8 人2019-07-15 发布
现代简约・三房・180㎡・半包20万・设计费4万
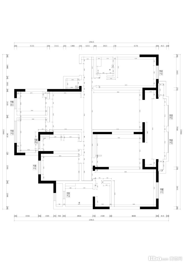
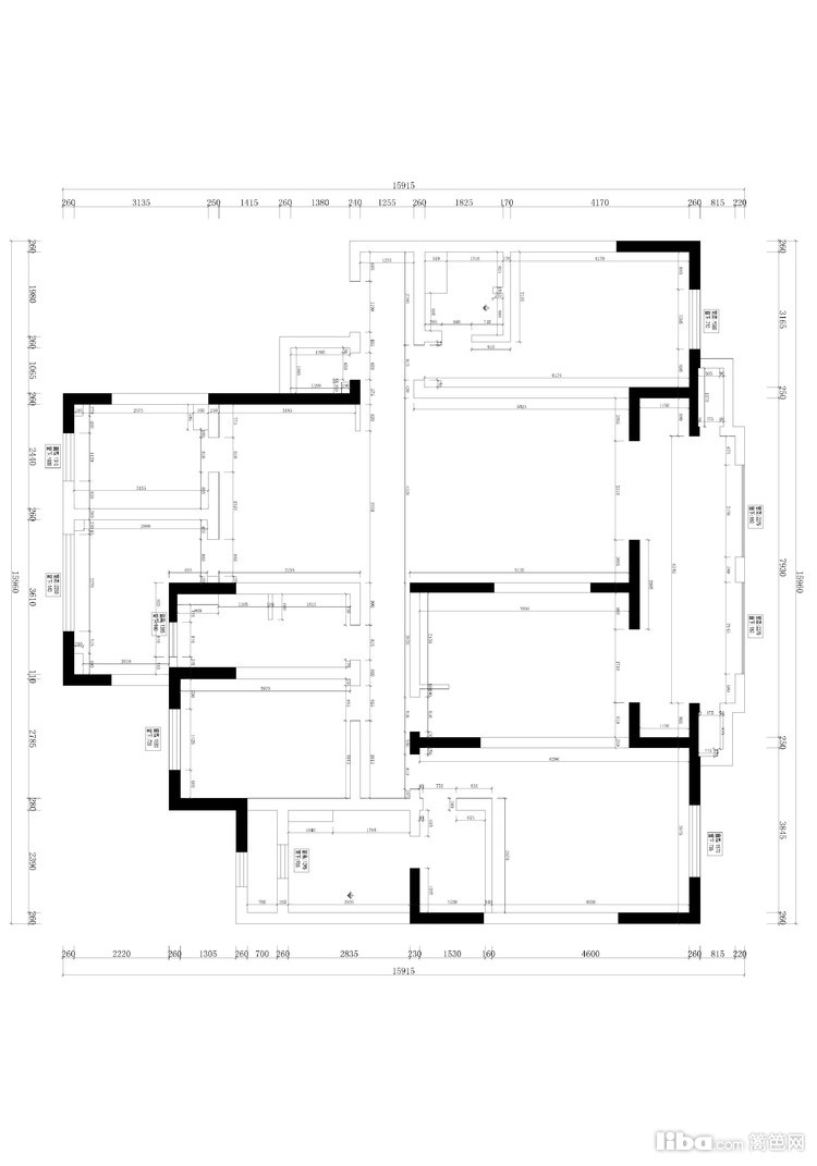
00_概述
  • 业主情况
    私企老板
  • 装修要求
    买来是精装房,风格可想而知,加之房型一言难尽,希望设计师可以改造。
  • 设计师
    Peter
  • 设计理念
    从户型改造上充分展现大户型的视野感
  • 01_客厅
    原始房型大白天进门后就要开灯,将小卫生间和卧室拆除后,装上旋转玻璃移门,以作装饰和隔断之用,采光明显改善。
  • 02_餐厅
    屋主家以西式餐点为主,而且空间通透,油烟不易停留,直接采用开放式厨房。完美实现了屋主要求的大厨房,放下了一台大双门冰箱。
  • 03_卧室
    改动主卧开门方向之后,一部分走道被纳进了主卧,靠客卧墙体内移了一段,做了一排柜子增加储物空间,通道保留了1米2的宽度。
  • 04_卫生间
    因为有两个卫生间,主卫就装了个浴缸,偶尔可以泡泡澡。两个卫生间用的都是挂壁式马桶,小户型也很适用,节省空间还避免卫生死角。
免费预约
已有490人下单。预约短信将发您手机上!
复制成功
请使用浏览器自带的“分享”功能
可以把作品分享到微信及朋友圈
取消
预约提醒
亲爱的会员您**********的号码
今天已预约过20个商家已达到上限
请明天再来!