装修首页
犀宅原创设计
作品库
霸道总裁
犀宅原创设计
免费预约
收藏
分享
霸道总裁
3688人
3 人
2019-07-15 发布
现代简约・一房・38㎡・全包48万
00_概述
业主情况
金融高管
装修要求
重视下班后的独处时光
设计师
刘楠
设计理念
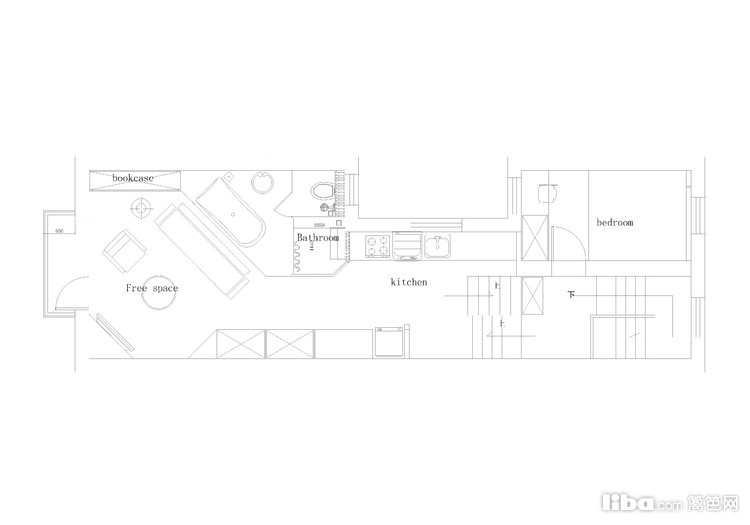
有别于传统家居格局,从业主的使用需求出发,将浴缸放在客厅中央,打造一个边泡澡边看星星的惬意空间。
01_客厅
这是一套38平的新式里弄老房,业主能够接受一切不规则的设计,而且很重视自己的下班时间和沐浴时间,将业主最爱做的事情设计在最重心的位置。
02_厨房
厨房的楼梯可通过天窗通往一个小小的露台。
03_其它
打掉原有木扶手,改成透明的钢化玻璃材质,改变了走道的视觉感。因为楼梯很窄,台阶高度很低,常规灯带装不了,需要根据踏步具体尺寸留好距离,挑选灯带。
免费预约
已有
490人
下单。预约短信将发您手机上!
你可能还喜欢以下作品
现代简约 | 两房
静安馨苑
24
现代简约 | 两房
城市花园
22
日式 | 一房
乐活居
23
现代简约 | 三房
新城公馆
25
预约
分享
收藏
返回顶部
报名成功
复制成功
请使用浏览器自带的“分享”功能
可以把作品分享到微信及朋友圈
微信好友
微信朋友圈
新浪微博
QQ空间
链接复制
取消
按钮
预约提醒
亲爱的会员
您**********的号码
今天已预约过20个商家已达到上限
请明天再来!