城中花园

2135人1 人2019-07-15 发布
混搭・两房・87㎡・半包11万・设计费3万
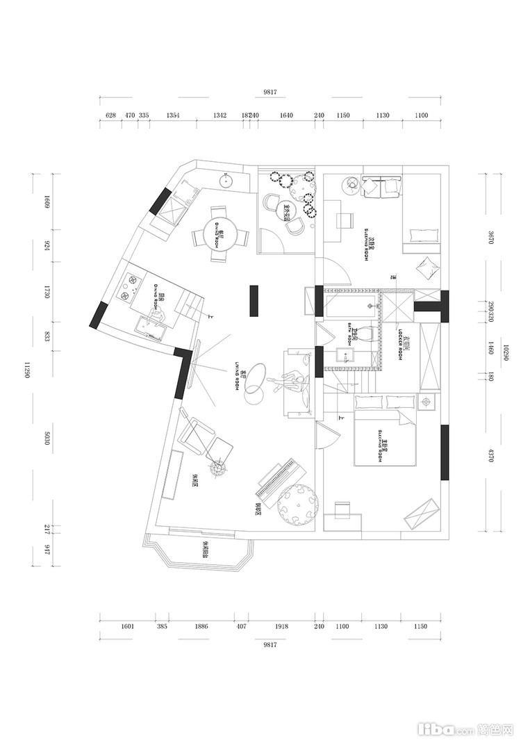
00_概述
  • 业主情况
    雕塑家
  • 装修要求
    尽可能的保留原始房型的高度与通透感,同时解决进门右侧4米挑高空间的合理使用问题,以及足够的收纳空间。
  • 设计师
    Peter
  • 设计理念
    独特的房型,让我们不能再以传统的设计思路来做设计。将层高不规则的缺陷化为优势,通过合理的分区巧妙利用
  • 01_客厅
    为了能够在这一空间中明确感知到空间与材料的原生特点,没有多余隔墙,没有任何吊顶,纵横交错的多条横梁未做额外遮盖修饰。
  • 02_餐厅
    中厨架空设置在进门右侧的挑高空间,底下是一个巨大的收纳空间,充分利用空间高度。 进门左侧是西厨、餐区、洗衣机。原本露台的隔墙用L型观景隔断替代,借景入室。
  • 03_卧室
    主卧床头。轻盈优美的弧线形楼梯扶手和直角栏杆,刚与柔的结合带来独特的美感。沿楼梯而上,是主卧的衣帽间。
  • 04_卫生间
    因为拥有3米多的挑高空间,我们将天花设计为弧形穹顶,2.5米高的墙面处做排风,淋浴房上半部分大胆采用撞色防水涂料。洗漱区用水磨石台面、洞石马赛克等自然材料结合。
免费预约
已有490人下单。预约短信将发您手机上!
复制成功
请使用浏览器自带的“分享”功能
可以把作品分享到微信及朋友圈
取消
预约提醒
亲爱的会员您**********的号码
今天已预约过20个商家已达到上限
请明天再来!